Gites En Pays D\'Othe
Preview only — see all hotel photos
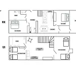
See all 52 photos 1 /
52
10
2 חוות דעת
Best options for your travel dates
להציג את המלון במפה
Gites En Pays D\'Othe
ממוקמת תוך 10 דקות נסיעה על Chapel of St-Avit in Aix-en-Othe, אקס-אן-אוטה Gites En Pays D'Othe משקיפה על גינה. לGites En Pays D'Othe בנוסף ישנו מטבח מצויד עם מיקרוגל, טוסטר ומתקני בישול בסיסיים.
Marche couvert d'Aix-en-Othe זה בקרבה של 5 דקות נסיעה משם. וילה זו נמצאת במרחק של 94 ק"מ על Épernay.
אמבטיה ומקלחת יהיו מסופקים עבורך בחדר האמבטיה.
עוד +
פחות -
נא להמתין, אנחנו בודקים חדרים זמינים בשבילך.
מחפש מלונות
מתקנים
השרותים הפופולריים ביותר
- ידידותי לילדים
- ללא חיות מחמד
מתקנים
כללי:
- ללא-עישון בכל החללים הפרטיים והציבוריים
- גישה לאינטרנט
- חניה
- אין להביא חיות מחמד
- גלאי עשן
- גישה עם מפתח
ארוחות:
- קומקום
- כלי מטבח
- פינת אוכל חיצונית
ספורט:
- שמשיות חוף
- מיטת שמש
- מרפסת שמש
מאפייני חדר:
- חימום
- אזור הסבה
- טרסה
- רהיטי גן
- מתקני תה וקפה
- שולחן אוכל
- שירותי גיהוץ
- מכונת כביסה
- LCD TV
- מיטת תינוקות/ עריסות
- לולים
- משחקי לוח
- משחקיה
- רצפת פרקט
מדיניות
צ'ק-אין: מ18:00 עד 23:30
צ'ק-אוט: מ07:00 עד 10:00
מספר רישיון79374372500012
מפה
אטרקציות מקומיות
ציוני דרך
- Chapel of St-Avit in Aix-en-Othe (2096 ק"מ)
- Marche couvert d'Aix-en-Othe (2249 ק"מ)
נמלי תעופה
- שדה התעופה שאלון ואטרי (97 ק"מ)
חוות דעת
כתוב ביקורת
100% ביקורות מאומתות
10 /10